TERMURAH DIJUAL PABRIK 0 JALAN RAYA SUKODONO SIDOARJO FULL FURNISH
KABUPATEN SIDOARJO, JAWA TIMURDescription
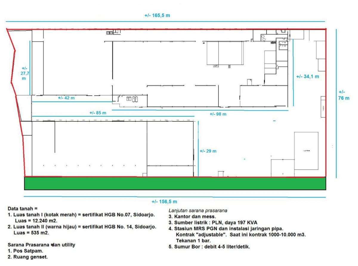
2508036 TERMURAH DIJUAL PABRIK 0 JALAN RAYA SUKODONO SIDOARJO FULL FURNISH Spesifikasi : Luas Tanah : 12,775 m² Listrik : 197 KVA Air : Sumur bor Surat : HGB Ada kantor & mess Ada jaringan gas Dijual beserta mesin chiki + wafer 45 unit dan 3 truck + 1 mobil (panther / avanza) HARGA JUAL : 100 M
