SEWA RUMAH CIRENDEU GRESS 2 LANTAI CIPUTAT TANGSEL
KOTA TANGERANG SELATAN, BANTENDescription
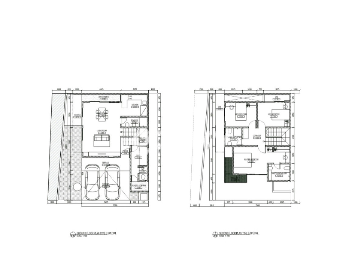
NAZ4250091 SEWA RUMAH CIRENDEU GRESS 2 LANTAI CIPUTAT TANGSEL LT 135 m² (12.10 × 11.25) LB 145 m² ( 2 Lantai) KT 3 + 1 KM 3 + 1 PLN 3500 Watt PDAM Hadap Selatan Carport 2 Mobil Keamanan One Gate Sistem CCTV 24 Jam Harga 110 Juta/ Tahun Dekat Cinere Dekat Terminal Lebak Bulus Dekat Stasiun Jurangmangu Dekat Uin Ciputat Dekat Univ. Pembangunan Jaya Bintaro
