Rumah Baru 2 Lantai Di Kalijudan Asri Surabaya
KOTA SURABAYA, JAWA TIMURDescription
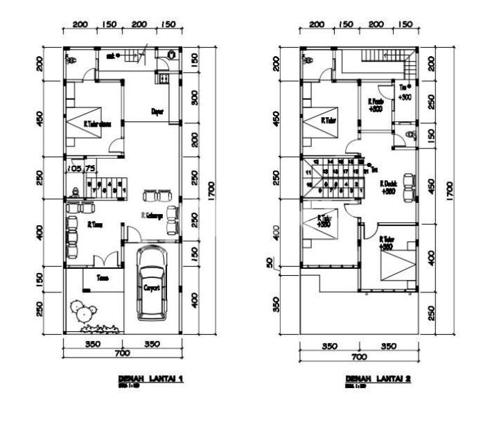
Di Jual Rumah Minimalis Brand New Kalijudan Asri - Surabaya Rumah dengan konsep Town House Luas Tanah : 119 m² Luas Bangunan : 190 m² Dimensi 7 x 17 m² 2 Lantai Kamar Tidur 3+1 Kamar Mandi 4+1 PLN 2.200 Watt Air PDAM Hadap Barat Surat SHM Carport 1 mobil Row Jalan 2 mobil Harga 2.1 M / Nego More Info : Bobby Galaxy Ultimate
