JUAL TANAH KAWASAN ELIT LONG & WIDE GOLF VIEW BUKIT DARMO GOLF BLOK D
KOTA SURABAYA, JAWA TIMURDescription
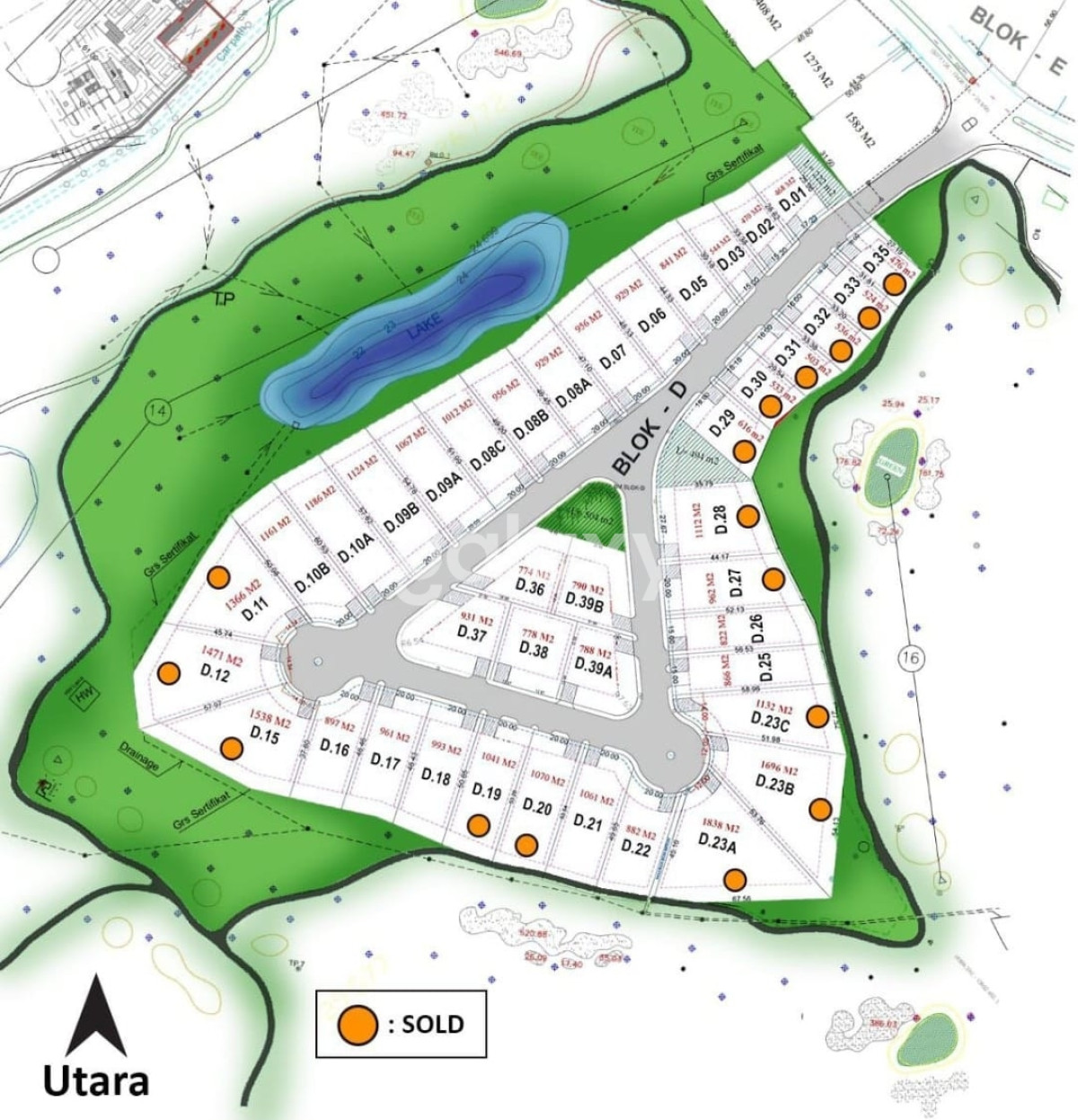
axz-BDG-d JUAL TANAH KAWASAN ELIT LONG & WIDE GOLF VIEW BUKIT DARMO GOLF Blok D Luas Tanah mulai 468m² s/d 1.182m² Lebar mulai 14m - 27m Pilihan Hadap - Utara, Selatan, Timur, Barat Pilihan View - Golf View, 37 jt/m² ( belum PPN) - Non Golf View, 30,5 jt/m² ( belum PPN) (A) GOLF VIEW >> Akses Masuk Tenggara >> Golf View Barat Laut D01 - LT 468 ( Lebar 17.23 ) D02 - LT 470 ( Lebar 15.3 ) D03 - LT 544 ( Lebar 15 ) D05 - LT 841 ( Lebar 20 ) D06, D08a - LT 929 ( Lebar 20 ) D07, D08b - LT 956 ( Lebar 20 ) D08c - LT 1.018 ( Lebar 20 ) D09a - LT 1.067 ( Lebar 20 ) D09b - LT 1.024 ( Lebar 20 ) D10a - LT 1.186 ( Lebar 20 ) D10b - LT 1.161 ( Lebar 20 ) >> Akses Masuk Utara >> Golf View Selatan D16 - LT 897 ( Lebar 20 ) D17 - LT 961 ( Lebar 20 ) D18 - LT 993 ( Lebar 20 ) D21 - LT 1.061 ( Lebar 20 ) D22 - LT 882 ( Lebar 20 ) >> Akses Utama Barat >> Long & Wide Golf View Timur D25 - LT 866 ( Lebar 15 ) D26 - LT 822 ( Lebar 15 )
