DIJUAL RUKO 0 JALAN RAYA DI SIDOARJO LOKASI BAGUS KAWASAN BISNIS GEDANGAN !
KABUPATEN SIDOARJO, JAWA TIMURDescription
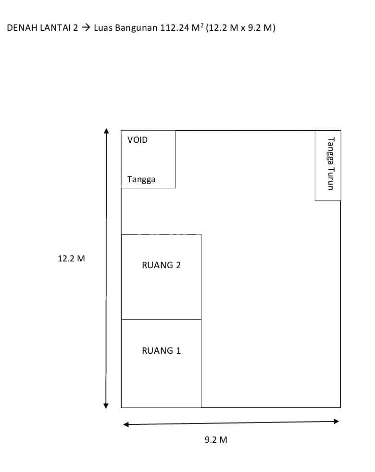
2508007 DIJUAL RUKO 0 JALAN RAYA DI SIDOARJO LOKASI BAGUS KAWASAN BISNIS GEDANGAN ! Spesifikasi : Luas Tanah : 195m² Luas Bangunan : 103,04m² Dimensi : 21,2 x 9,2 K. Mandi : 1 Ruangan : 2 Hadap : Timur Listrik : 4400 watt token Air : Sumur Surat : SHM Lantai : 2 HARGA JUAL : 6,2 M NEGO - LT 1 => Luas Bangunan 103,04m² (11,2 m X 9,2 m) - LT 2 => Luas Bangunan 112,24m² (12,2 m X 9,2 m) - Posisi pak Rusdi di Jakarta, bila mau viewing bisa melalui Ibu/Adiknya di Surabaya - Penawaran dari agent lain terkahir 5 M tidak dilepas
