DIJUAL PABRIK 0 JALAN RAYA SIDOARJO LOKASI BAGUS STRATEGIS SIAP PAKAI
KABUPATEN SIDOARJO, JAWA TIMURDescription
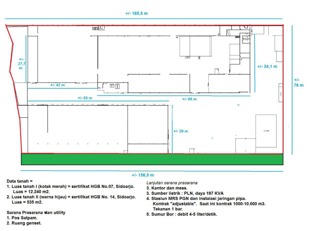
Pabrik strategis di Sidoarjo siap pakai, menawarkan potensi investasi yang menjanjikan. Berlokasi di jalur utama, pabrik ini memiliki akses mudah dan lingkungan yang mendukung aktivitas bisnis Anda. Berikut detail properti: - Luas Lahan: 12.775 m² - Tipe: Jual - IMB: Ya - Sertifikat: SHGB - Kategori: Pabrik - Kondisi: Bagus Sekali - Listrik: 157.600 - Sumber Air: SUMUR BOR - Harga: Rp.100.000.000.000 Jangan lewatkan kesempatan emas ini untuk mengembangkan bisnis Anda!
