Orchid Park Batam Centre (OPBC)

Ruko Orchid Park Batam Centre (OPBC) merupakan kawasan komersial modern dengan posisi premium di pusat kota. Berada di lingkungan yang ramai dengan akses mudah ke pusat bisnis, perumahan, dan fasilitas umum, menjadikannya pilihan ideal untuk usaha maupun investasi jangka panjang di Batam.

More Details

Ruko Orchid Park Batam Centre (OPBC)

Ruko modern dengan lokasi premium, dikelilingi pusat bisnis dan hunian, ideal untuk usaha maupun investasi.

OPBC Progress

Melalui video ini, Anda dapat menyaksikan langsung keunggulan Ruko Orchid Park Batam Centre. Dengan desain modern, lokasi strategis, dan lingkungan bisnis yang berkembang pesat, OPBC menjadi pilihan tepat untuk usaha maupun investasi masa depan.

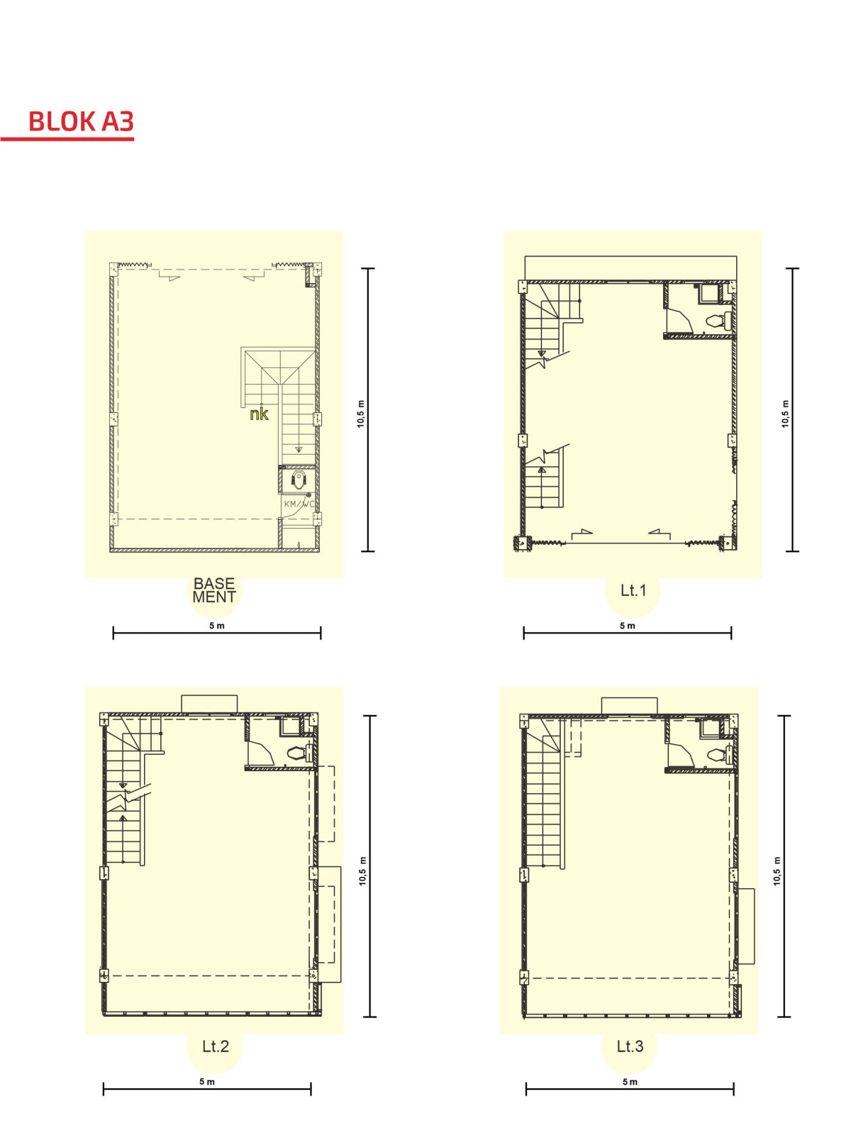
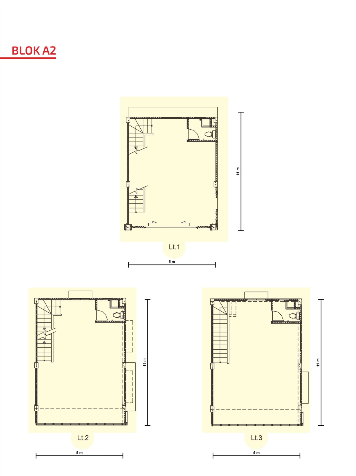
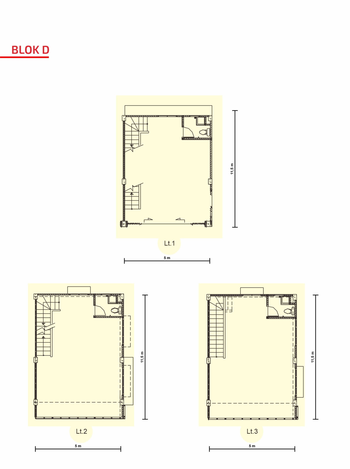
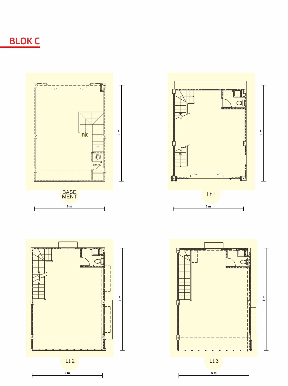
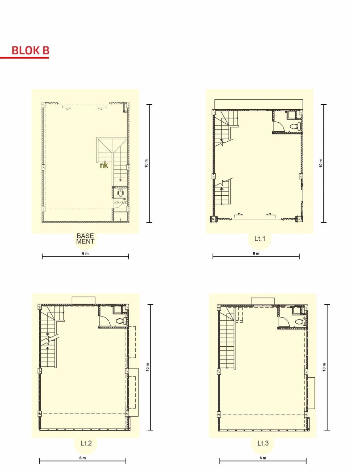
Siteplan Ruko Orchid Park Batam Center

“Siteplan tertata rapi dengan akses jalan lebar, area parkir luas, dan lokasi strategis untuk mendukung aktivitas bisnis Anda.”

rio hartowan adisasmita
RIO
GALAXY One
yusni mutiara
MUTIA
GALAXY One