Dreamland City – Ruko & Kavling di Segitiga Emas Batam

Lokasi padat penduduk antara Marina, Tanjung Uncang, dan Sekupang.

Contact Us

Visualisasi Dreamland City

Tampilan unit & suasana lingkungan yang hidup.

Gambar-galeri menunjukkan fasad ruko yang baru dan modern, lingkungan pasar yang sudah beroperasi, serta kavling yang disiapkan — memberi gambaran nyata tentang kehidupan dan aktivitas di kawasan ini.

Video Lokasi & Progress Dreamland City

Intip langsung kondisi lapangan & fasilitas yang telah berjalan.

Tayang video yang memperlihatkan lokasi strategis, pasar yang telah aktif, serta progres pembangunan unit ruko & kavling — membantu calon pembeli memahami keunggulan dan kesiapan kawasan.

Video Lokasi & Progress Dreamland City

Intip langsung kondisi lapangan & fasilitas yang telah berjalan.

-----

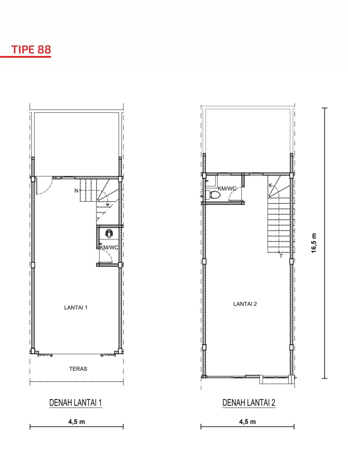
Site Plan & Layout Unit Dreamland City

Blok & kavling terstruktur, akses visual & fungsional.

Site plan interaktif memungkinkan calon pembeli melihat detail tiap blok/unit, luas tanah & bangunan, serta posisi depan pasar; tata kawasan dirancang agar setiap unit memiliki visibilitas optimal dan mobilitas yang nyaman.

rio hartowan adisasmita
RIO
GALAXY One
tejono theo gunawan
THEO WU GUNAWAN
GALAXY One